Descrizione

A Tiezzo di Azzano Decimo, a due passi da tutti i servizi, proponiamo un appartamento ristrutturato nel 2024, situato al secondo piano e completo di ascensore.
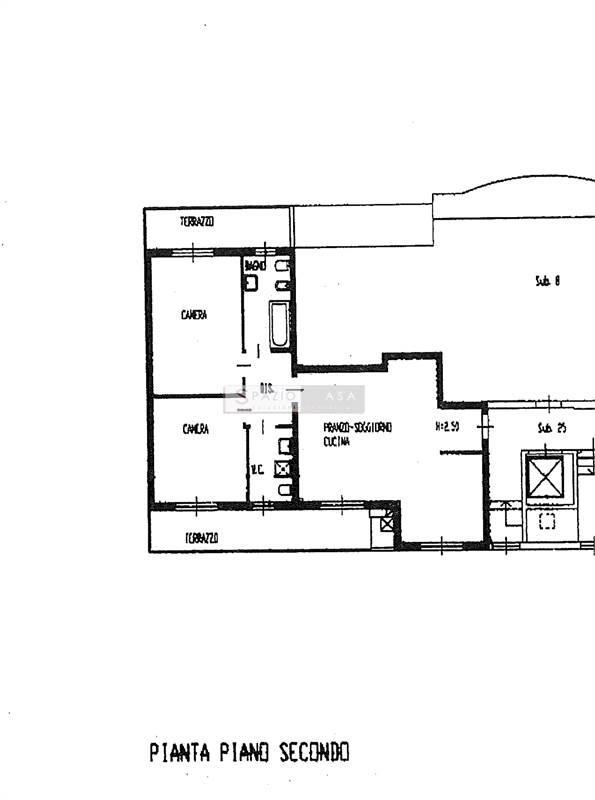
L’ampio soggiorno con cucina a vista offre un ambiente luminoso e funzionale. La zona notte comprende due camere matrimoniali e due bagni finestrati.
A completare la proprietà, due terrazzi ideali per momenti all’aperto, un comodo posto auto coperto e pannelli fotovoltaici.

Un appartamento curato e pronto da abitare. Contattaci per prenotare una visita!


Caratteristiche principali

Stato Immobile
Ristrutturato
Tipo Soggiorno
Soggiorno
Tipo Cucina
Abitabile
Riscaldamento
Autonomo
Fonte Energetica
Metano

Cookie preference